Tweed Heads South
220 - 228 Chinderah Bay Drv
- 17
EXCEPTIONAL FREESTANDER - OFFICE & WAREHOUSE
UNDER OFFER
Office & Warehouse - Perfect presentation
DJ Stringer Commercial is delighted to exclusively present the proposed final stage Commercial Building at 220 - 228 Chinderah Bay Drive to the market.
Don't miss out on this incredible opportunity to elevate your business operations.
This rare opportunity has arisen to lease a top-of-the-line industrial warehouse in the greater Tweed region.
If you are looking for a central location and quality flood-free Industrial Space, then this rare offering is for you. The property is positioned in a highly sought after location with unparalleled access to both North and Southbound travel onto the M1 Motorway.
Ideally suited to various Industrial and Commercial uses such as manufacturing, warehousing, storage, transport etc. Centrally located backing on to the M1 Motorway is this prime and rare industrial commercial development .
This property has excellent street frontage with access to all services. The property site has been elevated to be flood proofed to accommodate Tweed Shire 1 in 100 year levels. This site remained high and dry during the most recent historical 2022 floods.
This is an unrivaled opportunity for businesses that are looking to secure a rarely available industrial building in this prime location and to capitalize on this site's exposure and easy accessibility.
Opportunities to occupy a freestanding building of this size and quality within the Tweed industrial region are extremely rare.
Construction is planned to commence shortly and scheduled to be completed in 6 months. The Landlord seeks a long lease term.
KEY FEATURES;
-Site area circa 5,000m2 plus
-Zoning = General Industrial
-Long Lease Term required
-Brand new Building
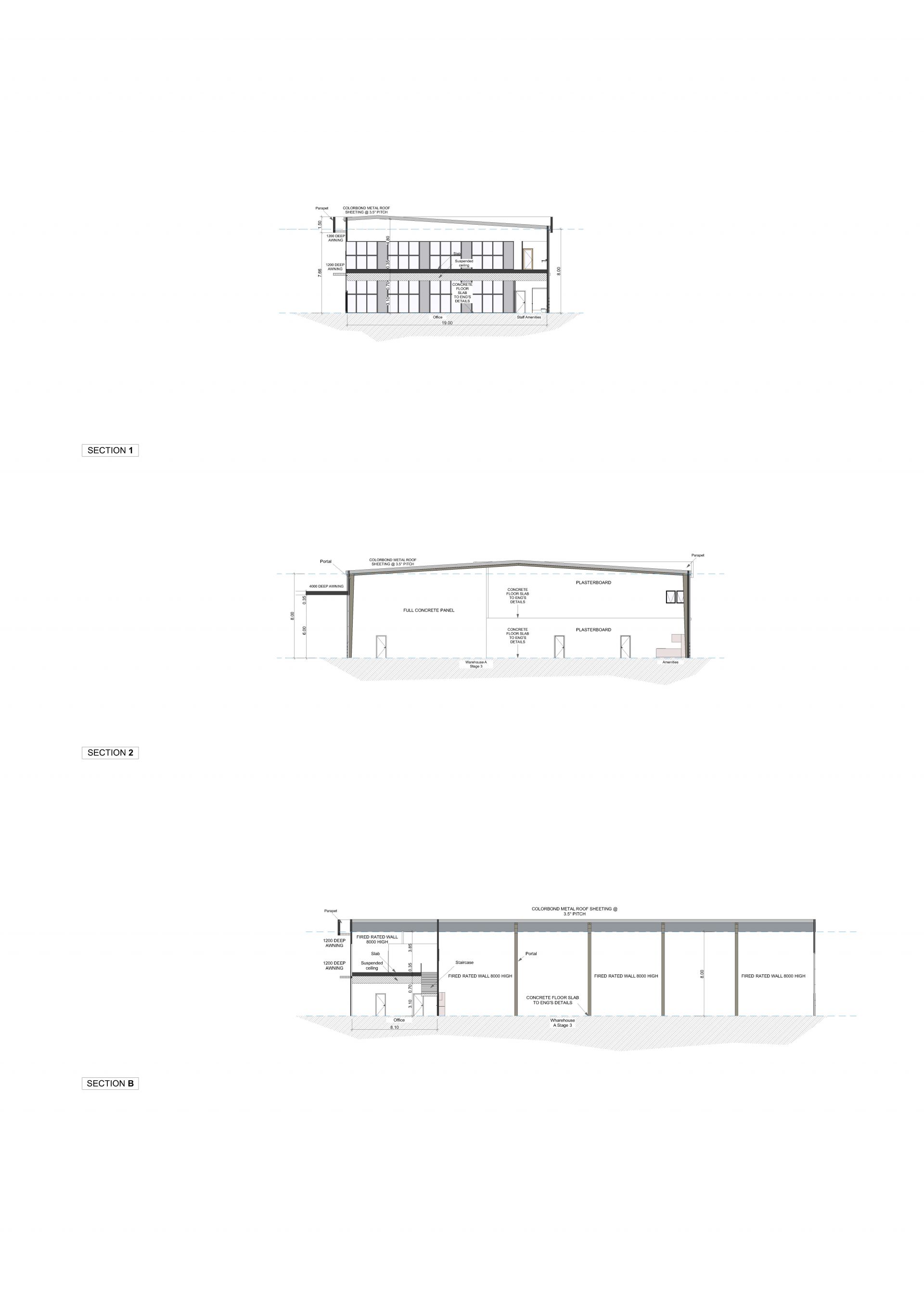
-Warehouse area 1183.35 sqm
-Ground Floor Office & Amenities Area 159.22 sqm
-First Floor Office & Amenities Area 159.22 sqm
-8.5 m high clearances
-Property has been elevated to be flood proofed to accommodate Tweed Shire 1 in 100 year levels
-17 on site car parks plus truck bays
-Potential additional Hardstand storage yard to rear of property
-North facing aspect
-Easy and direct access both North and South to the M1 Motorway.
AGENT'S COMMENTS:
With Industrial land sites of this scale becoming a rare commodity, seldom does an offering of this significance come to the market.
Its size and location in this part of the Southern Gold Coast, Tweed Shire is unbeatable. This is the largest Industrial Leasing opportunity currently available in this growth corridor of the Tweed Shire.
For further information on this unique opportunity please contact the appointed Exclusive Commercial Agent, Peter Antony 0417 694 034, DJ Stringer Commercial Property Services.
Disclaimer:
All information contained herein is gathered from sources we believe to be reliable. DJ Stringer Property Services Pty Ltd and its staff will not be held responsible for any act or omission arising from the accuracy of such material.
We cannot guarantee its accuracy and interested persons should rely on their own enquiries.
Such enquires should include, but in no way limited & directed, to your legal representative, any local authorities, the Contract of Sale and in the event of a Unit, Strata Title or Community Title, refer to the Body Corporate, Community Management Statement & Disclosure Statement for any information on the property, Common Property & Exclusive use areas, that may directly or indirectly affect this property.
Office & Warehouse - Perfect presentation
DJ Stringer Commercial is delighted to exclusively present the proposed final stage Commercial Building at 220 - 228 Chinderah Bay Drive to the market.
Don't miss out on this incredible opportunity to elevate your business operations.
This rare opportunity has arisen to lease a top-of-the-line industrial warehouse in the greater Tweed region.
If you are looking for a central location and quality flood-free Industrial Space, then this rare offering is for you. The property is positioned in a highly sought after location with unparalleled access to both North and Southbound travel onto the M1 Motorway.
Ideally suited to various Industrial and Commercial uses such as manufacturing, warehousing, storage, transport etc. Centrally located backing on to the M1 Motorway is this prime and rare industrial commercial development .
This property has excellent street frontage with access to all services. The property site has been elevated to be flood proofed to accommodate Tweed Shire 1 in 100 year levels. This site remained high and dry during the most recent historical 2022 floods.
This is an unrivaled opportunity for businesses that are looking to secure a rarely available industrial building in this prime location and to capitalize on this site's exposure and easy accessibility.
Opportunities to occupy a freestanding building of this size and quality within the Tweed industrial region are extremely rare.
Construction is planned to commence shortly and scheduled to be completed in 6 months. The Landlord seeks a long lease term.
KEY FEATURES;
-Site area circa 5,000m2 plus
-Zoning = General Industrial
-Long Lease Term required
-Brand new Building
-Warehouse area 1183.35 sqm
-Ground Floor Office & Amenities Area 159.22 sqm
-First Floor Office & Amenities Area 159.22 sqm
-8.5 m high clearances
-Property has been elevated to be flood proofed to accommodate Tweed Shire 1 in 100 year levels
-17 on site car parks plus truck bays
-Potential additional Hardstand storage yard to rear of property
-North facing aspect
-Easy and direct access both North and South to the M1 Motorway.
AGENT'S COMMENTS:
With Industrial land sites of this scale becoming a rare commodity, seldom does an offering of this significance come to the market.
Its size and location in this part of the Southern Gold Coast, Tweed Shire is unbeatable. This is the largest Industrial Leasing opportunity currently available in this growth corridor of the Tweed Shire.
For further information on this unique opportunity please contact the appointed Exclusive Commercial Agent, Peter Antony 0417 694 034, DJ Stringer Commercial Property Services.
Disclaimer:
All information contained herein is gathered from sources we believe to be reliable. DJ Stringer Property Services Pty Ltd and its staff will not be held responsible for any act or omission arising from the accuracy of such material.
We cannot guarantee its accuracy and interested persons should rely on their own enquiries.
Such enquires should include, but in no way limited & directed, to your legal representative, any local authorities, the Contract of Sale and in the event of a Unit, Strata Title or Community Title, refer to the Body Corporate, Community Management Statement & Disclosure Statement for any information on the property, Common Property & Exclusive use areas, that may directly or indirectly affect this property.
